MONTECARLO - LOS ANGELES - MIAMI - MILANO - ROMA - LONDRA - FIRENZE - MOSCA - SAN PIETROBURGO - PADOVA - BUDAPEST - PLAYA DEL CARMEN
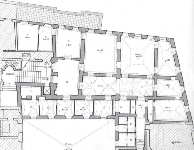
APPARTAMENTO MQ 550 CON MQ 40 DI TERRAZZO E 4 POSTI AUTO Nel pieno centro storico di Roma all'interno di un seicentesco palazzo monumentale disponiamo di quest'unità immobiliare unica nel suo genere e destinata a chi desidera una dimora unica o un ufficio di altissima rappresentanza..
L'appartamento , dotato di triplo ingresso e perfettamente divisibile occupa una superficie complessiva di circa 600 mq oltre a 40 mq di terrazzo è composto da stanze e saloni di rappresentanza con soffitti alti circa 5 mt con affreschi originali dell'epoca e in perfetto stato manutentivo, pavimentazione in marmo, porte con cornici in marmo etc ..
A completamento della proprietà tre locali a piano strada adibiti a box auto per 4 veicoli .
Attualmente sono stati iniziati i lavori di ristrutturazione e poi fermati per dare modo all'eventuale acquirente di personalizzare l'immobile a suo piacimento il tutto eventualmente a cura della parte venditrice "soluzione chiavi in mano"
Allo stato attuale l'immobile è accatastato come A/10 (ufficio) ma su richiesta dell'acquirente può essere ripristinata la categoria abitativa.
sono stati iniziati i lavori di ristrutturazione all'interno dell'immobile ma poi sospesi per dare modo all'acquirente di scegliere il tipo e livello di finiture.


Città : Roma
Regione : RM
Località
Lista Agenti
Mostra tutte le offerte speciali
Tutte le propietà
Cerca
Vedi la mia lista


Calcolo Mutuo
Convertitore Valuta
Contatta l'agente
Altri Immobili Agente









Potete fissare un'appuntamento per una valutazione gratuita dell'immobile chiamando il 340/6995200 o riempiendo il form di valutazione online che troverete nella pagina "valutazioni" oppure scrivendo a: